祝・ご成約!さいたま市見沼区中川
| 物件No. | 0030 | 公開日 | 2020年9月17日 |
|---|---|---|---|
| 物件種目 | 売買 | 取引態様 | 売主 |
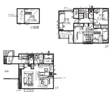
| 間取り | 3LDK | 価格(税込) | 2,690万円 |
| 物件概要 | ☆住宅性能表示対応住宅♪ ◇設備・仕様:浄水器、食洗機付きシステムキッチン・浴室乾燥機・シャンプードレッサー・ウォシュレット・エコジョーズ・カラーモニターホン・室内干し・ペアガラス・ロフト等 |
||
| 所在地 | さいたま市見沼区中川 | ||
| 沿線・駅 |
JR「大宮」駅バス17分「西浦」停歩3分 |
||
DETAILS 物件詳細
| 建物名 | - | 建物状況 | 新築 |
|---|---|---|---|
| 建物構造 | 木造 | 階数 | 2階 |
| 建物面積 | 102.26m²(30.93坪) | 土地面積 | 103.91m²(31.43坪) |
| 築年月 | 2020年 2月 | 駐車場 | 有 |
| 間取り詳細 | - | ||
| 土地権利 | 所有権 | 地目 | 宅地 |
|---|---|---|---|
| 借地権 | - | ||
| 接道状況 |
公道 m 公道 北西4m 私道 m |
||
| 私道負担 | 私道負担ありm² | 都市計画 | 市街化区域 |
| 国土法 | 要 | その他制限事項 | - |
| 用途地域 |
第一種低層住居専用地域 |
||
| 建ぺい率 | 50% | 容積率 | 100% |
| 現況 | その他 | 引渡日 | 即 |
|---|---|---|---|
| 入居可能時期 | - | ||
設備
主要設備
洗髪洗面化粧台 /
浴室乾燥機 /
トイレ2ヶ所 /
温水洗浄便座 /
アイランドキッチン /
食器洗浄乾燥機 /
浄水器 /
室内物干し /
プロパンガス /
モニター付インターホン
備考
駐車2台可







