リユース物件!!さいたま市北区吉野町
| 物件No. | 00150 | 公開日 | 2024年10月7日 |
|---|---|---|---|
| 物件種目 | 売買 | 取引態様 | 仲介 |
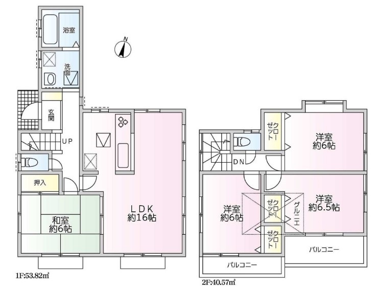
| 間取り | 4LDK | 価格(税込) | 2,980万円 |
| 物件概要 | ☆ニューシャトル「吉野原」駅徒歩17分 ☆ホームインスペクション実地♪ ☆既存住宅瑕疵保険付き!! ☆和室続きのLDK16帖!! ☆全居室6帖以上!! ☆南向き2面バルコニー♪ ☆カースペース2台可!! ☆収納豊富♪グルニエ付き |
||
| 所在地 | さいたま市北区吉野町 | ||
| 沿線・駅 |
ニューシャトル「吉野原」駅徒歩17分 |
||
DETAILS 物件詳細
| 建物名 | - | 建物状況 | 中古 |
|---|---|---|---|
| 建物構造 | 木造 | 階数 | 2号棟階 |
| 建物面積 | 94.39m²(28.55坪) | 土地面積 | 122.24m²(36.98坪) |
| 築年月 | 2004年 4月 | 駐車場 | 有 |
| 間取り詳細 | - | ||
| 土地権利 | 所有権 | 地目 | 宅地 |
|---|---|---|---|
| 借地権 | - | ||
| 接道状況 |
公道 北4m 公道 m 公道 m |
||
| 私道負担 | 私道負担なし | 都市計画 | 市街化区域 |
| 国土法 | 要 | その他制限事項 | - |
| 用途地域 | - | ||
| 建ぺい率 | 60% | 容積率 | 200% |
| 現況 | その他 | 引渡日 | 相談 |
|---|---|---|---|
| 入居可能時期 | - | ||
設備
主要設備
モニター付オートロック
備考
駐車2台可




