祝・ご成約!!上尾市栄町(全1棟)
| 物件No. | 0118 | 公開日 | 2024年2月4日 |
|---|---|---|---|
| 物件種目 | 売買 | 取引態様 | 仲介 |
| 間取り | 他 | 価格(税込) | 3,390万円 |
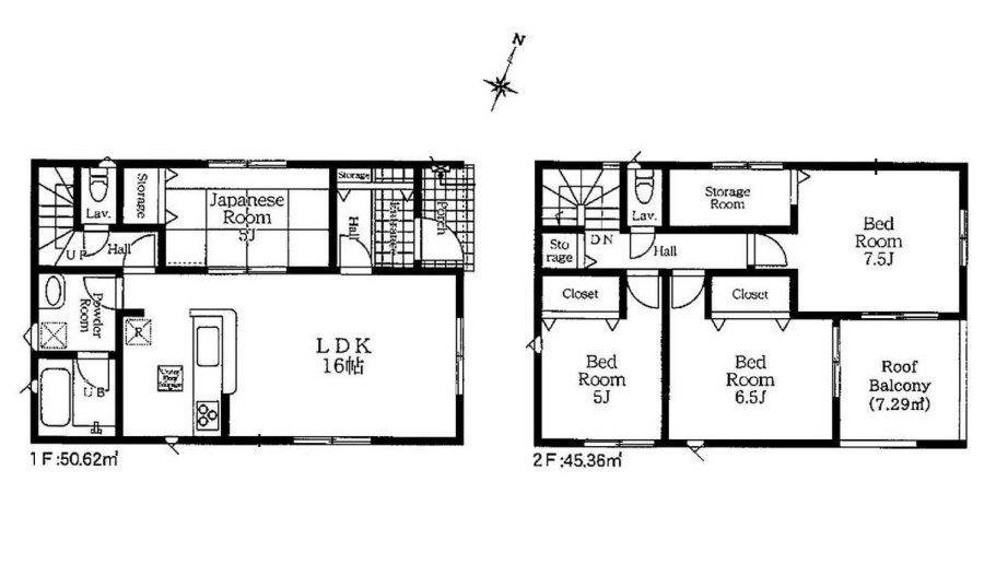
| 物件概要 | ☆JR「上尾」駅徒歩23分(バス便あり) ☆広々リビング16帖♪ ☆設備・仕様:浄水器付きシステムキッチン・浴室乾燥機・ウォシュレットトイレ・ウォークインクローゼット・床下収納・TVモニターホン・宅配BOX等 ☆買い物便利!!イオンモール徒歩約6分♪ ☆耐震等級3取得 |
||
| 所在地 | 上尾市栄町 | ||
| 沿線・駅 |
JR「上尾」駅徒歩23分 |
||
DETAILS 物件詳細
| 建物名 | - | 建物状況 | 新築 |
|---|---|---|---|
| 建物構造 | 木造 | 階数 | 2階 |
| 建物面積 | 95.98m²(29.03坪) | 土地面積 | 122.83m²(37.16坪) |
| 築年月 | 2023年 10月 | 駐車場 | 有 |
| 間取り詳細 | 4SLDK | ||
| 土地権利 | 所有権 | 地目 | 宅地 |
|---|---|---|---|
| 借地権 | - | ||
| 接道状況 |
公道 東10m 公道 m 公道 m |
||
| 私道負担 | 私道負担なし | 都市計画 | 市街化区域 |
| 国土法 | 要 | その他制限事項 | - |
| 用途地域 |
第二種住居地域 |
||
| 建ぺい率 | 60% | 容積率 | 200% |
| 現況 | その他 | 引渡日 | 即 |
|---|---|---|---|
| 入居可能時期 | - | ||
設備
主要設備
洗髪洗面化粧台 /
追焚 /
浴室乾燥機 /
トイレ2ヶ所 /
温水洗浄便座 /
カウンターキッチン /
浄水器 /
収納スペース /
全居室収納 /
複層ガラス /
モニター付インターホン /
宅配ボックス
備考






