祝・ご成約!!上尾市瓦葺(全1棟)
| 物件No. | 0095 | 公開日 | 2023年1月21日 |
|---|---|---|---|
| 物件種目 | 売買 | 取引態様 | 仲介 |
| 間取り | 他 | 価格(税込) | 4,398万円 |
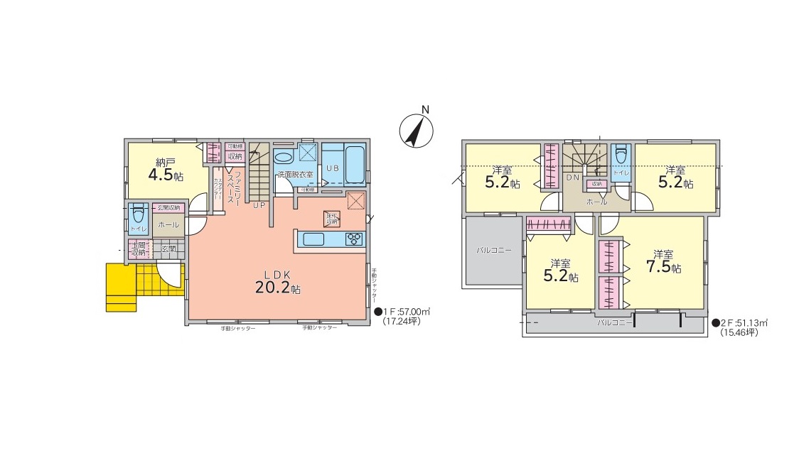
| 物件概要 | ☆通勤・通学に便利!JR「東大宮」駅徒歩13分 ☆角地につき陽当り良好♪ ☆標準仕様:浄水器付きシステムキッチン・浴室乾燥機・三面鏡付洗面化粧台・シャワートイレ・TVモニター付きインターホン・複層ガラス・土間収納・シャッター(一部)等 ☆広々リビング20帖超♪ ☆2面南向きバルコニー♪ ☆カースペース並列2台可♪(車種による) ☆生活環境充実♪商業施設も徒歩圏内♪ ☆フラット35S対応 |
||
| 所在地 | 上尾市瓦葺 | ||
| 沿線・駅 |
JR「東大宮」駅徒歩13分 |
||
DETAILS 物件詳細
| 建物名 | - | 建物状況 | 新築 |
|---|---|---|---|
| 建物構造 | 木造 | 階数 | 2階 |
| 建物面積 | 108.13m²(32.71坪) | 土地面積 | 137.73m²(41.66坪) |
| 築年月 | 2023年 1月 | 駐車場 | 有 |
| 間取り詳細 | 4SLDK | ||
| 土地権利 | 所有権 | 地目 | 宅地 |
|---|---|---|---|
| 借地権 | - | ||
| 接道状況 |
公道 m 公道 m 公道 m |
||
| 私道負担 | 私道負担ありm² | 都市計画 | 市街化区域 |
| 国土法 | 要 | その他制限事項 | - |
| 用途地域 |
第一種低層住居専用地域 |
||
| 建ぺい率 | 60% | 容積率 | 80% |
| 現況 | その他 | 引渡日 | 即 |
|---|---|---|---|
| 入居可能時期 | - | ||
設備
主要設備
洗髪洗面化粧台 /
追焚 /
浴室乾燥機 /
トイレ2ヶ所 /
温水洗浄便座 /
カウンターキッチン /
食器洗浄乾燥機 /
浄水器 /
収納スペース /
全居室収納 /
クローゼット /
都市ガス /
複層ガラス /
全居室フローリング /
モニター付オートロック /
2面バルコニー
備考
駐車2台可 /
閑静な住宅地










