ご成約おめでとうございます!!上尾市原市(1期)
| 物件No. | 0024 | 公開日 | 2020年6月4日 |
|---|---|---|---|
| 物件種目 | 売買 | 取引態様 | 仲介 |
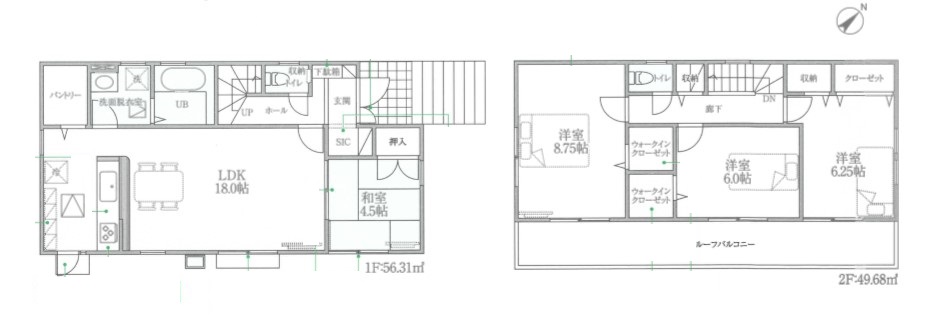
| 間取り | 4LDK | 価格(税込) | 3,030万円 |
| 物件概要 | ☆通勤・通学に便利!ニューシャトル「沼南」駅徒歩6分! ◇設備・仕様:浄水器、食洗機付きシステムキッチン・パントリー・ウォシュレット・シューズイン、ウォークインクローゼット・ペアガラス・TVモニター付きインターホン・カードキー |
||
| 所在地 | 上尾市原市 | ||
| 沿線・駅 |
ニューシャトル「沼南」駅徒歩6分 |
||
DETAILS 物件詳細
| 建物名 | - | 建物状況 | 新築 |
|---|---|---|---|
| 建物構造 | 木造 | 階数 | 2階 |
| 建物面積 | 105.99m²(32.06坪) | 土地面積 | 165.82m²(50.16坪) |
| 築年月 | 2020年 4月 | 駐車場 | 有 |
| 間取り詳細 | - | ||
| 土地権利 | 所有権 | 地目 | 宅地 |
|---|---|---|---|
| 借地権 | - | ||
| 接道状況 |
公道 北東4m 公道 m 公道 m |
||
| 私道負担 | 私道負担なし | 都市計画 | 市街化区域 |
| 国土法 | 要 | その他制限事項 | - |
| 用途地域 | - | ||
| 建ぺい率 | 60% | 容積率 | 200% |
| 現況 | その他 | 引渡日 | 相談 |
|---|---|---|---|
| 入居可能時期 | - | ||
設備
主要設備
洗髪洗面化粧台 /
浴室乾燥機 /
トイレ2ヶ所 /
温水洗浄便座 /
カウンターキッチン /
食器洗浄乾燥機 /
収納スペース /
全居室収納 /
W.INクローゼット /
床下収納 /
都市ガス /
複層ガラス /
モニター付インターホン
備考
駐車2台可 /
閑静な住宅地 /
平坦地

