祝・ご成約!!さいたま市桜区白鍬
| 物件No. | 0049 | 公開日 | 2021年11月15日 |
|---|---|---|---|
| 物件種目 | 売買 | 取引態様 | 仲介 |
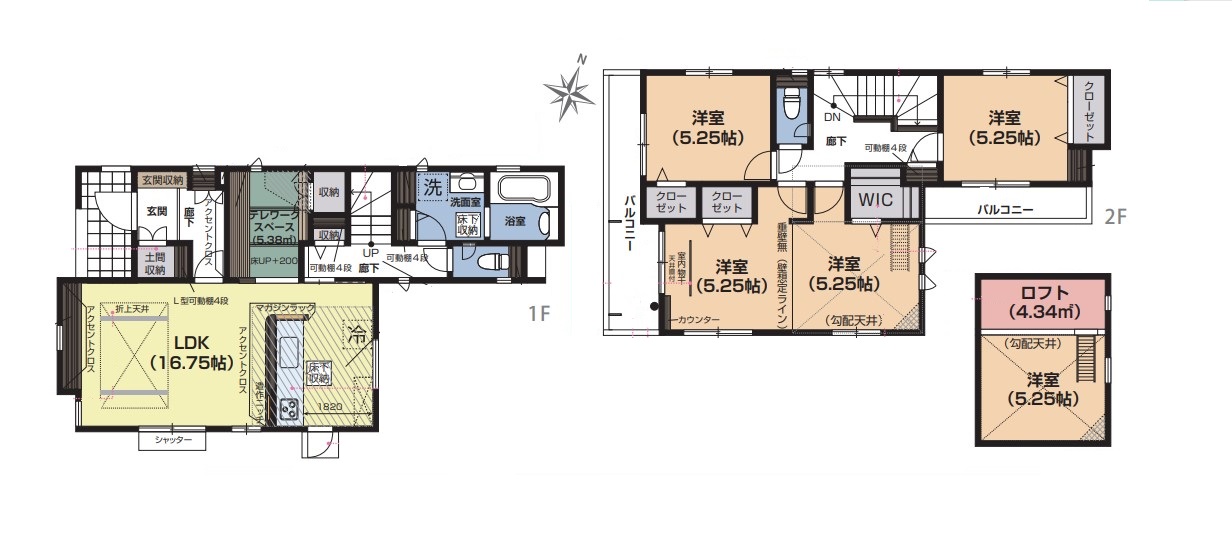
| 間取り | 3LDK | 価格(税込) | 4,290万円 |
| 物件概要 | ☆通勤快速停車!JR「与野本町」駅徒歩29分 ☆角地!陽当たり良好♪テレワークスペースあり♪ ☆3LDKから4LDKへ可変式♪ ◇設備・仕様:システムキッチン・食洗機・浴室乾燥機・ウォークインクローゼット・ウォシュレットトイレ・床下収納・TVモニターホン・室内干し・宅配BOX ◇広々リビング16帖超♪ ◇並列駐車2台可♪(車種による) ◇長期優良住宅 ◇耐震等級3 ◇断熱等性能等級4取得 ◇フラット35S |
||
| 所在地 | さいたま市桜区白鍬 | ||
| 沿線・駅 |
JR「与野本町」駅徒歩29分 |
||
DETAILS 物件詳細
| 建物名 | - | 建物状況 | 新築 |
|---|---|---|---|
| 建物構造 | 木造 | 階数 | 2階 |
| 建物面積 | 140.97m²(42.64坪) | 土地面積 | 139.45m²(42.18坪) |
| 築年月 | 2021年 8月 | 駐車場 | 有 |
| 間取り詳細 | - | ||
| 土地権利 | 所有権 | 地目 | 宅地 |
|---|---|---|---|
| 借地権 | - | ||
| 接道状況 |
公道 東南4.3m 公道 南西4m 公道 m |
||
| 私道負担 | 私道負担なし | 都市計画 | 市街化区域 |
| 国土法 | 要 | その他制限事項 | - |
| 用途地域 |
第二種中高層住居専用地域 |
||
| 建ぺい率 | 60% | 容積率 | 200% |
| 現況 | その他 | 引渡日 | 相談 |
|---|---|---|---|
| 入居可能時期 | - | ||
設備
主要設備
洗髪洗面化粧台 /
浴室乾燥機 /
トイレ2ヶ所 /
温水洗浄便座 /
カウンターキッチン /
食器洗浄乾燥機 /
全居室収納 /
W.INクローゼット /
室内物干し /
都市ガス /
全居室フローリング /
モニター付インターホン /
宅配ボックス
備考
駐車2台可 /
閑静な住宅地 /
平坦地







